首頁 > 房屋出售 > 誠昱/786坪廠住,乙種工業地
第一房屋仲介 - 誠昱/786坪廠住,乙種工業地

誠昱/786坪廠住,乙種工業地

廠房      1億8800萬

系統編號

物件區域
717台南市仁德區

物件地址
中正路三段

地坪
786.45 坪

總建坪
363.69 坪

室內坪數
363.69 坪

主建物坪
355.95 坪

附屬建物坪數
7.74 坪

車位
車庫    

總樓層
2 樓

位於樓層
1~2 樓

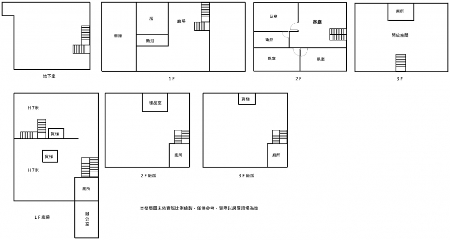
格局
4房5衛

建物結構
鋼筋混凝土(RC)

建築完工
1989年 屋齡約37年

臨路寬度
約8 米路

鄰近市場
傳統市場

公園綠地
社區公園

特色說明
1.3相動力1000馬力,發電機10K伏特
2.30噸消防水地下水池,有消防等級
3.貨梯可載堆高機,可上二樓作業,有天車2.8頓*1+1頓贈付
4.起重貨梯*2台載重1500公斤,地下室約70.08平方公尺(21.2建坪)
5.目前為生活用品射出機作業,有營登、工商登記證(消防證)
6.需約看請先聯繫安排,廠房有權狀,辦公室與避難室為96.67坪+工業用267.03坪

※以上資訊如有記載錯誤,一律依謄本登記簿為準

 - 誠昱/786坪廠住,乙種工業地
 - 誠昱/786坪廠住,乙種工業地
 - 誠昱/786坪廠住,乙種工業地
 - 誠昱/786坪廠住,乙種工業地
 - 誠昱/786坪廠住,乙種工業地
 - 誠昱/786坪廠住,乙種工業地
 - 誠昱/786坪廠住,乙種工業地
 - 誠昱/786坪廠住,乙種工業地
 - 誠昱/786坪廠住,乙種工業地
 - 誠昱/786坪廠住,乙種工業地
 - 誠昱/786坪廠住,乙種工業地
 - 誠昱/786坪廠住,乙種工業地
 - 誠昱/786坪廠住,乙種工業地
 - 誠昱/786坪廠住,乙種工業地
 - 誠昱/786坪廠住,乙種工業地
推薦物件...

誠昱/金華路1段1樓整新.

誠昱/金華路1段1樓整新.
498 萬

誠昱/湖內81大地坪優質.

誠昱/湖內81大地坪優質.
1383 萬

誠昱/東區大同國小方正美.

誠昱/東區大同國小方正美.
490 萬

誠昱/山上果菜合作社平坦.

誠昱/山上果菜合作社平坦.
498 萬

誠昱/玉井佛聖建地

誠昱/玉井佛聖建地
3980 萬

誠昱/善化茄拔方正農地

誠昱/善化茄拔方正農地
918 萬

誠昱/協進國小金華商圈.

 誠昱/協進國小金華商圈.
199 萬

誠昱/仁德中山路近高鐵乙.

誠昱/仁德中山路近高鐵乙.
4800 萬


更多..
地圖
分享到臉書